EN
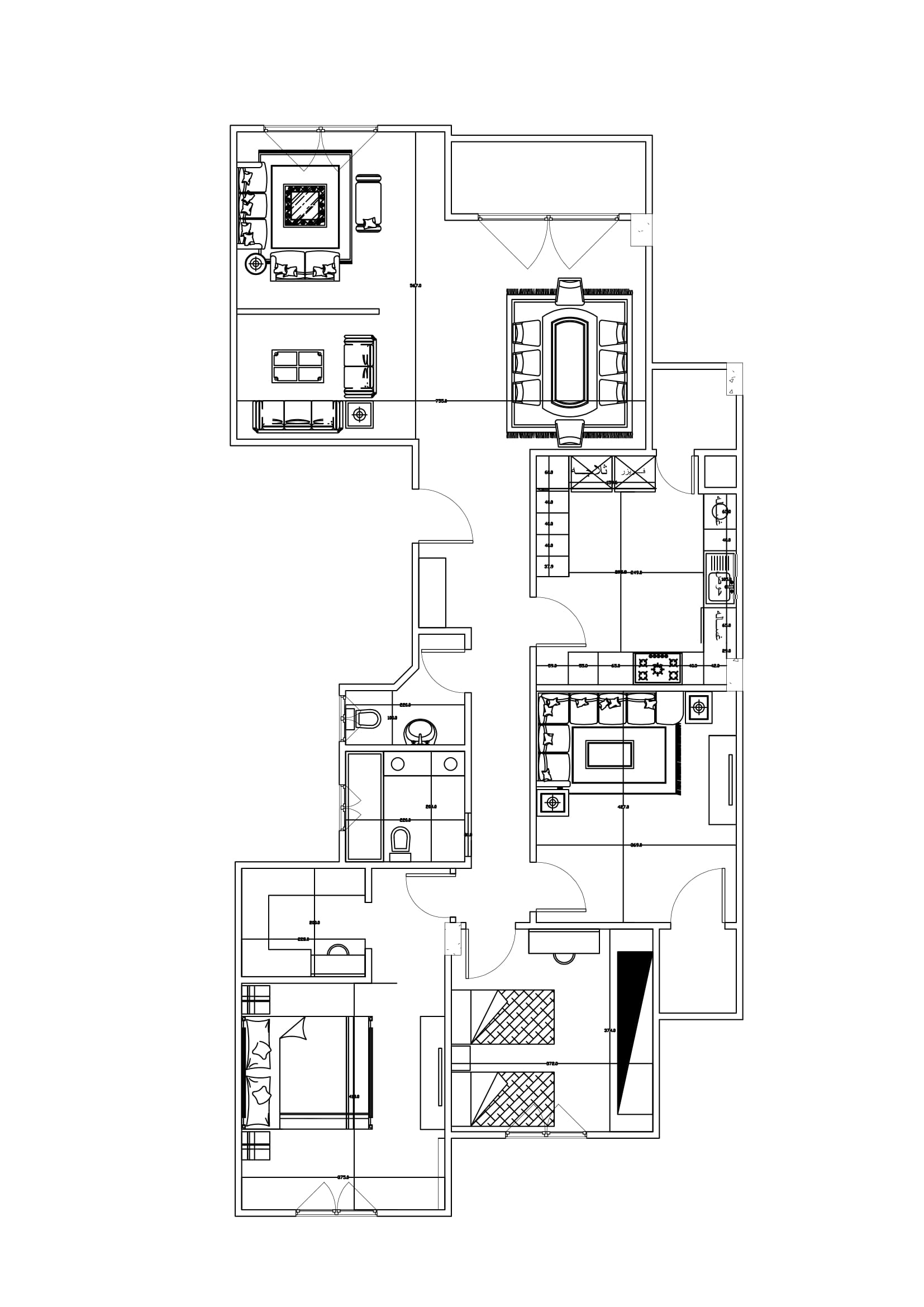
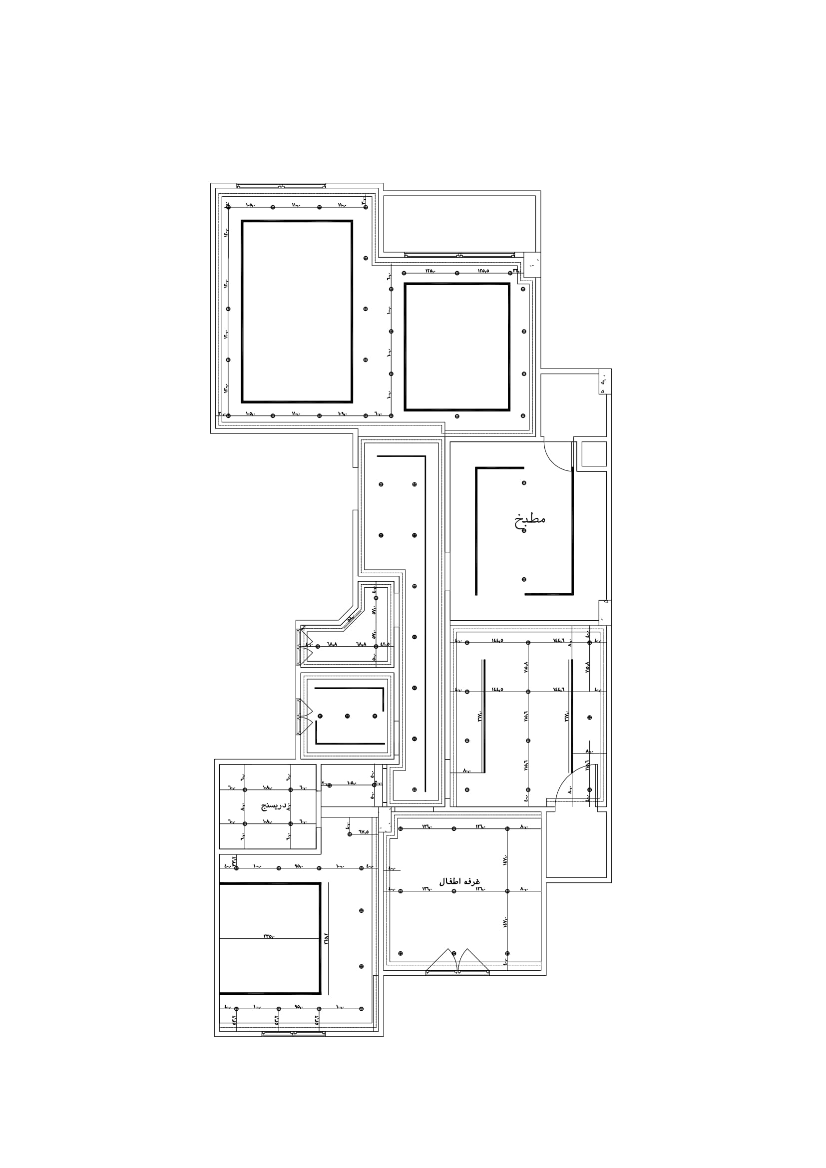
Cairo University Compound (Apartment)
Location 3
3D Exterior Design Photos
,
3D Interior Design Photos
,
Construction
,
Consulting
,
Engineering
جميع المشاريع
العميل
النوع الفرعي
الخدمة
منطقة الأرض
المنطقة
نوع المشروع
تكلفة المشروع
نطاق الخدمات
المساحة المبنية
design
shopdrawing
أبجد هوز حطي كلمن سعفص قرشت ثخذ ضظغ
التصميم
الرسم